 |
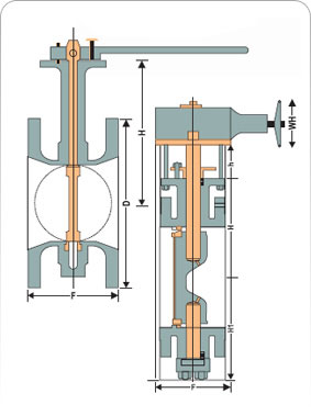
| Parts List |
| No. |
|
Parts |
Material |
| 14 |
1 |
Wheel Nut & Washer |
C.S, TOBS916 |
| 13 |
1 |
Hand Wheel |
Malleable Iron |
| 12 |
2.2 |
Eye Bolt & Nut |
C.S. TO IS 41 90 |
| 11 |
- |
Stud & Nut |
ASTM A 1 93 Gr. B7 & ASTM A 1 94 Gr. 2H |
| 10 |
- |
Gland Packings |
Asbestos Inconel Wire |
| 09 |
1 |
Gasket |
Asbestos |
| 08 |
1 |
Yoke Bush |
NI - Resist (A 439 D2) |
| 07 |
1 |
Gland Flange |
C.S. TO IS 226 |
| 06 |
1 |
Gland Bush |
AISI410 |
| 05 |
1 |
Spindle |
AISI410 |
| 04 |
1 |
Disc (valve) |
AISI 410 + 1 3% Cr. Steel Facing |
| 03 |
1 |
Seat |
AISI 410 + 1 3% Cr. Steel Facing |
| 02 |
1 |
Bonnet/cover |
C.I. |
| 01 |
1 |
Body |
C.I. |
|
|
| |
| SIZE |
25 |
40 |
50 |
65 |
80 |
100 |
125 |
150 |
200 |
| PORT |
25 |
40 |
50 |
65 |
80 |
100 |
125 |
150 |
203 |
| L |
152 |
203 |
254 |
290 |
305 |
360 |
400 |
480 |
600 |
| H |
200 |
241 |
270 |
307 |
338 |
363 |
445 |
470 |
585 |
| H1 |
207 |
251 |
283 |
324 |
358 |
388 |
477 |
508 |
635 |
| 0Wh |
140 |
160 |
200 |
200 |
230 |
310 |
310 |
310 |
350 |
| 0D |
121 |
140 |
165 |
185 |
205 |
230 |
280 |
305 |
368.3 |
| T |
14.3 |
17.5 |
19.1 |
19.1 |
22.2 |
25.4 |
28.6 |
28.6 |
31.8 |
| 0J |
17.5 |
17.5 |
17.5 |
17.5 |
17.5 |
17.5 |
22.2 |
22.2 |
22.2 |
| N |
4 |
4 |
4 |
8 |
8 |
8 |
8 |
12 |
12 |
| K |
87 |
105 |
127 |
146 |
165 |
190 |
235 |
260.5 |
323.8 |
| A |
80 |
105 |
130 |
145 |
160 |
180 |
215 |
240 |
270 |
| P |
80 |
102 |
115 |
127 |
140 |
150 |
155 |
205 |
|
| Q |
90 |
115 |
127 |
140 |
152 |
180 |
203 |
228 |
|
| R |
231 |
263 |
288 |
293.5 |
337 |
401 |
423 |
494 |
|
|
 |
|
| |
FLANGE AS PER B.S. 10 TABLE H
MAX. WORKING PRESSURE 13 Kg/cm2
MAX. TEMPERATURE 220?C
ALSO AVAILABLE IN PN-10 & PN-16 |
| |